Welcome to the new IOA website! Please reset your password to access your account.

Proceedings of the Institute of Acoustics

 

Chopin musical scales – new opera house in Poland; architecture and acoustic design of multipurpose 1100 seat auditorium

 

Elora Christoula, School of Architecture, N.T.U.A., Greece
Kassandra Christoula, School of Architecture, N.T.U.A., Greece
Vasiliki Giannoutsou, School of Architecture, N.T.U.A., Greece
Vasilios Ghikapeppas, School of Architecture, N.T.U.A., Greece
Giannis Karagiannis, School of Architecture, N.T.U.A., Greece
Alexandra Sotiropoulou, School of Architecture & School of Civil Engineering, N.T.U.A., Greece

 

1 INTRODUCTION

 

This opera house is to be implemented in Wieliczka, Poland, a city of great musical tradition. The lot is near a cultural monument and tourist destination, namely the Wieliczka Salt Mine, which is situated just outside the city center and 15 km southeast of Kraków. The Opera house is intended to host the ongoing musical activities of the town, for instance ‘St. Kingi festival’, in a permanent space and functions as a Music and Cultural Center for the entire local community and the broader area as well. The architectural and acoustical design of the opera auditorium will be analyzed. The aim is to illustrate the philosophy behind; namely, that although acoustics is based on objective principles, the way the latter are translated into architectural language is unique for each auditorium, and depends on the cultural background and aesthetic point of view of the architect.

 

2 CONCEPT DESIGN

 

2.1 Introduction

 

The concept of the project is a building of sculptural form, consisting of a central volume (main auditorium) and a linear spiral that embraces the auditorium around and accommodates all ancillary facilities. In other words, the volume of the main auditorium including the loft of the fly tower, becomes pivotal in the overall composition.

 

 

Figure 1: Plan of the 2nd floor (+9.45 m)

 

 

Figure 2: 1:200 scale model

 

As in all public buildings, connection between the city and present opera house is of paramount importance; this is conspicuous in the entire design in many ways. For instance, an open-air public plaza (40 m x 40 m) is created on a lower level (i.e. -1.00 m re: main foyer of the opera house) in front of the main entrance to the building; this doubles as an outdoor festival space. Also, the northwest part of the building complex, which is an elevated green area (7,200 m2 ) on a level higher than the plaza (+4.20 m) serves as an extension to the pre-existing public park and protects the plaza from the street noise. At the same time this green area covers up a 180-spot parking space underneath (+0.00 m). Furthermore, from the southern entrance, visitors have access to an ascending ramp, namely the terrace of the building; from this point, visitors may follow the linear spiral route around the lot, so passing by picturesque views to the city on the way. At the ramp top (+17.85 m), visitors have views on the plaza and the park next to the lot. From there, visitors may take the sloped pathway back, either using the elevators to enter the building (+0.00 m) or take a break and grab a bite at the restaurant below (+13.65 m).

 

 

Figure 3: Longitudinal section

 

2.2 The Building

 

The development extends over 36,300 m2 on six floors. The building basically comprises the Opera House of 1130 seats with ancillary spaces such as dressing rooms, workshops and storage spaces, a Black-box theater, a multi-use space for meetings, lectures etc., a Library, a Reading room, an open Exhibition space, Rehearsal rooms, a small-scale Conservatory, a Restaurant, and a large underground parking. (Table 1)

 

Table 1: Basic features of the project

 

 

2.3 The Opera House

 

As already mentioned, the center of the overall composition is the auditorium. The void between the spiral building and the volume of the auditorium is the communal gathering space for public use. Gaps created on the floor, left and right of the volume of the auditorium illuminate the lower level, from which the access to the arena is made. This gives the impression that the volume is emerging from the ground up like a huge crystal. This reference continues inside the hall as well. The main access to the different levels of balconies is created through two spiral wooden staircases. This construction is the main feature of the lobby, when entering the building.

 

 

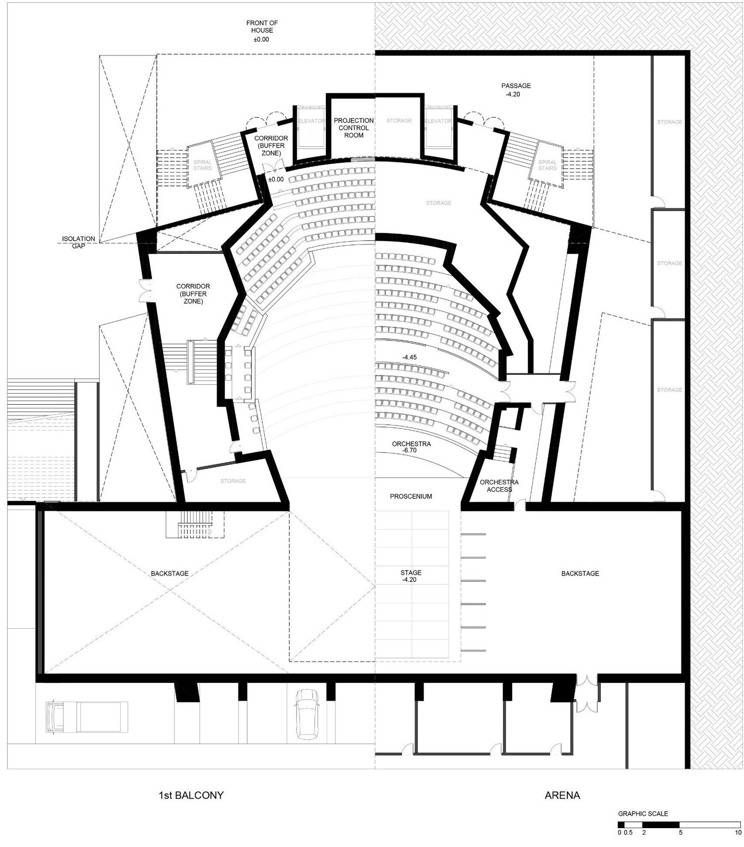
Figure 4: Auditorium Plan Level (+0.00 m) right and (+4.20 m) left.

 

3 ACOUSTIC DESIGN

 

Table 2: Basic features of the Auditorium

 

 

3.1 Shape and Form

 

The form of the auditorium was created with reference to the baroque theatre type1 , following modifications. The plan is a combination of an ellipse (outer shape) and a circle (inner shape) (Figure 5). This form is then divided into seating segments, to optimize sight and sound lines. In particular, each segment is oriented towards stage so that all seats have visibility in Plan; this is implemented by adopting a staggering of seats by half a chair width (sawtooth stagger) . To create good visibility in Section, each balcony has its own unique riser height. In addition, the walls of the auditorium are rotated parallel to each seating segment. The overall shape refers to the vineyard form often adopted in concert halls. The aim was to create a functional seating arrangement, the form of which in architectural language could be reminiscent of salt crystals.

 

 

Figure 5: Formation of plan

 

3.2 Acoustic Design

 

Apart from direct sound, proper distribution of reflected sound is also important. To satisfy this requirement, balcony fronts are designed to reflect sound emanating from stage onto the audience. The shape and direction of the balcony fascias become important in this case; in particular, the top part of the balcony fascias is so designed as to deflect diffuse sound towards the ceiling, and the lower part reflects sound towards the audience, where early reflections are needed. The balcony soffit also reflects sound towards rearmost seats under the balcony (Figure 8).

 

 

Figure 6: Acoustic lines plan

 

3.3 Ceiling

 

The ceiling of the auditorium is also in need of acoustic design to accomplish musical experience. The ceiling is mostly used to reflect the human voice1, the most important part of the opera, and it should reach all the patrons of the auditorium. The sound from the orchestra pit is mostly spread through the sides of the auditorium, and that is why concert halls don't make use of reflecting panels in their roofs.1

 

The reflecting panels of the roof, which have a curved form, are oriented accordingly to reflect sound to all balconies, reaching even the furthest seats. By creating large slots between ceiling reflectors, sound is able to penetrate and spread over and above reflectors; so the overall volume of the auditorium is used, to achieve proper reverberation for opera.

 

 

Figure 7: Section of balcony front sound reflections

 

 

Figure 8: Auditorium section, sound reflections

 

3.4 Reverberation Time

 

Reverberation time is critical in opera auditoria; this directly relates with acoustical quality of the venue and significantly influences the overall experience of both performers and audience. Reverberation is critical in many ways, for instance this has to enhance singing and instrumental music, as well as the sound of voices (recitativo), balance acoustics, create a sense of space, and support artistic expression.3 Thanks to Wallace Clement Sabine’s reverberation theory round the turn of 19 th century, reverberation time of auditoria could be calculated based on simple geometrical room parameters.

 

The volume (Vm ) of the opera auditorium is, 7,497 m3 and it is considered occupied by ⅔. Most of the surfaces in the auditorium are made of oak wood on concrete in order to avoid cancellation of lower frequency sound. The reflectors of the ceiling are made of plywood 25 mm thick. The proscenium opening is considered as a fully absorptive surface, owing to the heavy curtains and fly tower.4 The absorption coefficients of the materials are from L. L. Beranek.5

 

 

Table 3: Calculation of absorption and reverberation time of the auditorium

 

 

Table 4: Reverberation time of auditorium with medium upholstered seats

 

4 CONCLUSION

 

The design of an opera house is a challenging project architecturally, since this refers to a complex building, demanding lots of ancillary /support spaces as well as functional connection between building and the city. Nevertheless, of all auditorium forms the opera theatre is the most constraint in terms of design; indeed the typology of opera auditoria has emerged as a best compromise of constraints referring largely to visual needs as well as to acoustic needs both instrumental and vocal.

 

 

Figure 9: Salt Crystals

 

The present design emanates from the baroque theater typology. Although the latter is based on objective principles and has virtually remained unchanged over centuries, the way this (typology) is translated into architectural language is unique for each project. Polygonal, organic form of salt crystals in Wieliczka Salt Mines, has been the underlying source of inspiration in the present project. Reflecting panels are shaped accordingly, so as to project sound to target areas and create the desired architectural impression. Last, expressionist views of the present architects are conspicuous and allow visitors to enjoy the opera building inside out whichever standpoint they may choose.

 

With this endeavor, we hope to inspire future architects to experiment with new forms and new ways of expression. This could lead to architecture of greatest poetry and contribute to improved acoustic quality for the user.

 

 

Figure 10: Computer model illustrating the interior (side-front view) of the auditorium.

 

 

Figure 11: Computer model illustrating the interior (rear view) of the auditorium.

 

5 AKNOWLEDGMENTS

 

The present paper has been produced within the context of Diploma thesis of ex students Kassandra and Elora Christoula in the School of Architecture, National Technical University of Athens, Greece. This was supervised by assistant Professors Vassiliki Giannoutsou and Vassilios Ghikapeppas (design advisors), ex assoc. Professor Alexandra Sotiropoulou and doctoral student Giannis Karagiannis (acoustics advisors).

 

6  REFERENCES

 

  1. A. Sotiropoulou, Acoustic Design of Auditoria (in Hellenic), Undergraduate Handbook, Kallipos Hellenic Association of Academic Libraries, Athens (2016). https://hdl.handle.net/
  2. Barron Michael, Auditorium Acoustics and Architectural Design, Spon Press, London (2010).
  3. L.L. Beranek, Concert halls and opera houses: Music, acoustics, and Architecture, Springer, New York (2004).
  4. J.Y. Jeon, J. H. Kim, and J. K. Ryu, The effects of stage absorption on reverberation times in opera house seating areas, J,Acoust.Soc.Am., 137(3), 1099-1107 (2015).
  5. L. L. Beranek and T. Hidaka, Sound absorption in concert halls, J.Acoust.Soc.Am. 104(6) ,3169-3177 (1998).
  6. https://www.thoughtco.com/growing-table-salt-crystals-607663