Welcome to the new IOA website! Please reset your password to access your account.

Proceedings of the Institute of Acoustics

 

Finding early time limits 𝒕𝒆 with nonlinear regression on energy decay curves

 

C. Q. Xia, Department of Building Environment and Energy Engineering, The Hong Kong Polytechnic University, Hong Kong, China
S. K. Tang, School of Engineering, The University of Hull, Hull, UK

 

1 INTRODUCTION

 

This study started with building a database for the existing Jockey Club Auditorium (JCA). Using the impulse response method to measure numerous seats which cover the whole auditorium. Based on hundreds of in-situ measurements in each seat point to investigate the hall's acoustic performance. Reverberation time (RT) distributed in the whole auditorium is always similar in the hall with fixed volume and absorption areas. While impulse response (IR) shows the apparent difference between seating areas close to a lateral wall and middle areas, The measurement shows plateau energy decay in the middle frequency which reveals an early reflection effect in the front seat area. While in the middle areas, exponential decay presents stability indicating the direct sound is predominant with subsequent reverberation attenuation.

 

Schroeder first put forward the backward integrated energy curve also called as energy decay curve (EDC) in the 60s. All the acoustic parameters like Reverberation Time, Clarity, and Definition are based on the energy decay in EDC. Impulse responses in the entire auditorium are expected to propose by Volume and RT and Source receiver distance by Sabine and Barron. While the hall geometric data and the first lateral reflection path difference calculated from the point of source and receiver in seating areas shows differences, the middle area shows an exponential decay, while the EDC near the side wall always has a plateau.

 

To find out the attenuation of the impulse response in the early reflection, we propose a nonlinear method to find the early time limit which separates the early reflection and lateral reverberation. Sound attenuation can be calculated with surface shapes defined by surface absorption coefficient by using simulation software with time-consuming, an intuitive understanding of impulse response could get from the early time limit 𝑡𝑒 distribution by in-situ measurement.

 

2 THEORETICAL METHODS

 

2.1 Callback to Schroeder Integrated Impulse Method

 

Schroeder proposed the backward integration of the squared impulse response to calculate reverberation energy decay.1 The sound excites like an e-sweep or MLS signal and is generated by an independent omnidirectional sound source. Maximum length sequences (MLS) are binary sequences also known as pseudo-random binary sequences that are commonly generated by a cyclic shift of m-sized linear feedback shift registers along with a primitive polynomial. The periodic length P can be generated using the recursive formulation is equal to 2𝑁−1, where N is the order of shift register.2 A m-sequence of order 18 can generate a pseudorandom signal of 5.46 seconds with a sampling frequency of 48000 Hz. The deconvolution of interrupted noise can be analytically to generate room impulse response h(t), which backward integrated from t to infinity get energy time decay.3 𝐷(𝑡𝑘) is the decay function and 𝐷(𝑡𝑘) is the normalized decay function respectively.

 

 

Thus, the logarithmic energy decay curve 𝐸(𝑡𝑘) can be expressed as the following equation,

 

 

Jordan4 definite “steepness” 𝜎 at a time 𝑡0 corresponding to the 5dB below steady state during the buildup process. which is using the derivative of the decay curve for the first time.

 

 

He also pointed out that early decay time (EDT) is a great parameter to describe the attenuation of the sound field from -5dB to -15dB in the early stage. Nonlinear regression is used to find the best fitted decay in the truncated time interval.5 The modified model defined the theoretical energy density following a linear decay before exponential decay.6 Berardi et al7 compared the μ model and implement factor γ to the estimated energy of the direct sound in churches.

 

2.2 Early Decay Curve and Running Steepness Processing

 

Barron8 summarized the early decay curve into three typical decay shapes “cliff-type”, “plateau-type” and “sagging”. Fig. 1 illustrates the decay curve after direct sound arrival. The cliff decay represents the direct or early-reflection sound quite strongly. The plateau decay in Fig. 1(a)(ii) indicates the early reflection absence. While the measurement of JCA finds the plateau (early reflection) appears between the direct and reverberation sound in Fig. 1(b)(ii). The sagging reverberation curve is common in the back row of the auditorium far away from the source on the stage. In the actual comparison, the plateau produced by the early reflections has an apparent effect on the reverberation time (RT), it has troubled the reverberation time like T10, T20, T30 which selects -5 dB as the start point of slope reference. The same problem also happened on identifying which time interval like 50, 80 milliseconds chosen as the division of the energy ratio involving the perceived definition like Clarity and Definition.9

 


 

Figure 1: Types of early decay curve affected by early reflections in shoes-box shape auditorium compared with M. Barron EDC. (a) M. Barron EDC; (b) Measured EDC. (i) Cliff-type decay; (ii) Plateau-type decay; (iii) Sagging decay.

 

Past research mainly focuses on overall energy decay. Here the nonlinear running “steepness” 𝜎(𝑥,𝑡𝑘) of normalized decay curve 𝑑(𝑡𝑘)calculated from the running slope interval which fits a first degree least-squares polynomial, the running slope interval ∆𝑡 of the polynomial fitting is set to 10ms to avoid the influence of signal fluctuations on the slope in very small intervals. Total sound energy can be calculated by normalized energy time decay as shown in Fig. 2.

 

Least squares fitting proceeds the sum of the squares 𝑠𝑠 of the running steepness interval ∆𝑡 can be expressed as, for 𝑖=𝑘,𝑘+1,…,𝑘+Δ𝑡. which 𝑘=0,1,2… is the sample after direct sound arrival,

 

 

Running steepness 𝜎 calculated by linear regression coefficient is,

 

 

The slope of the reverberation time can well reflect the decay rate of the late reverberation sound, and the time delay between the direct sound and the reverberation sound is the point to be found. Before the early reflected sound, the rate of energy decay decreases sharper than the rate of late decay time (LDT), by comparing the slopes 𝜎(𝑡𝑘) and 𝐸DT, 𝑇20,𝑇30. Assuming the slope of 𝑡𝑘 is the slope difference of the reverberation time for the first time, it is defined as early time decay 𝑡𝑒,

 


 

It is worth noting that the background noise (BN) is much lower than the energy of the direct sound at the initial stage when using the running slope to find 𝑡𝑒, and still use 0.5 seconds as the upper limit on the impulse response integration (ULI) to ensure that all measurement points have the same upper limit.10 It can be found that most of the recorded impulse responses are completed within 0.5 seconds, and the subsequent signals are not read because they do not exceed the background noise without enough SNR, but it will not affect the appearance of early sound energy attenuation.

 

2.3 Revised certain delay 𝒕𝑹 in Energy Decay Curve

 

The model of the reverberant sound field in the theater is the result of the interaction of the direct sound and the reflected sound. Verification based on theoretical models and measurement models has been the focus of attention for a long time. In a steady-state sound field, the energy calculation of the direct sound is inversely proportional to the square of the source-receiver distance, while the energy of the multiple reflected sound is absorbed and reflected or scattered by the surrounding structures. The reflected sound energy is formed, which has a direct impact on the impression of the sound field. Based on the theories and measurement data of previous researchers, The measurement results of the JCA show a signal processing method in Fig. 2 to find the regularity of separating the direct sound and reflected sound boundary, and based on this finding, a general auditorium sound field model is deduced used for acoustic design.


 

Figure 2: Concept flowchart for 𝑡𝑒 estimation from the impulse response

 

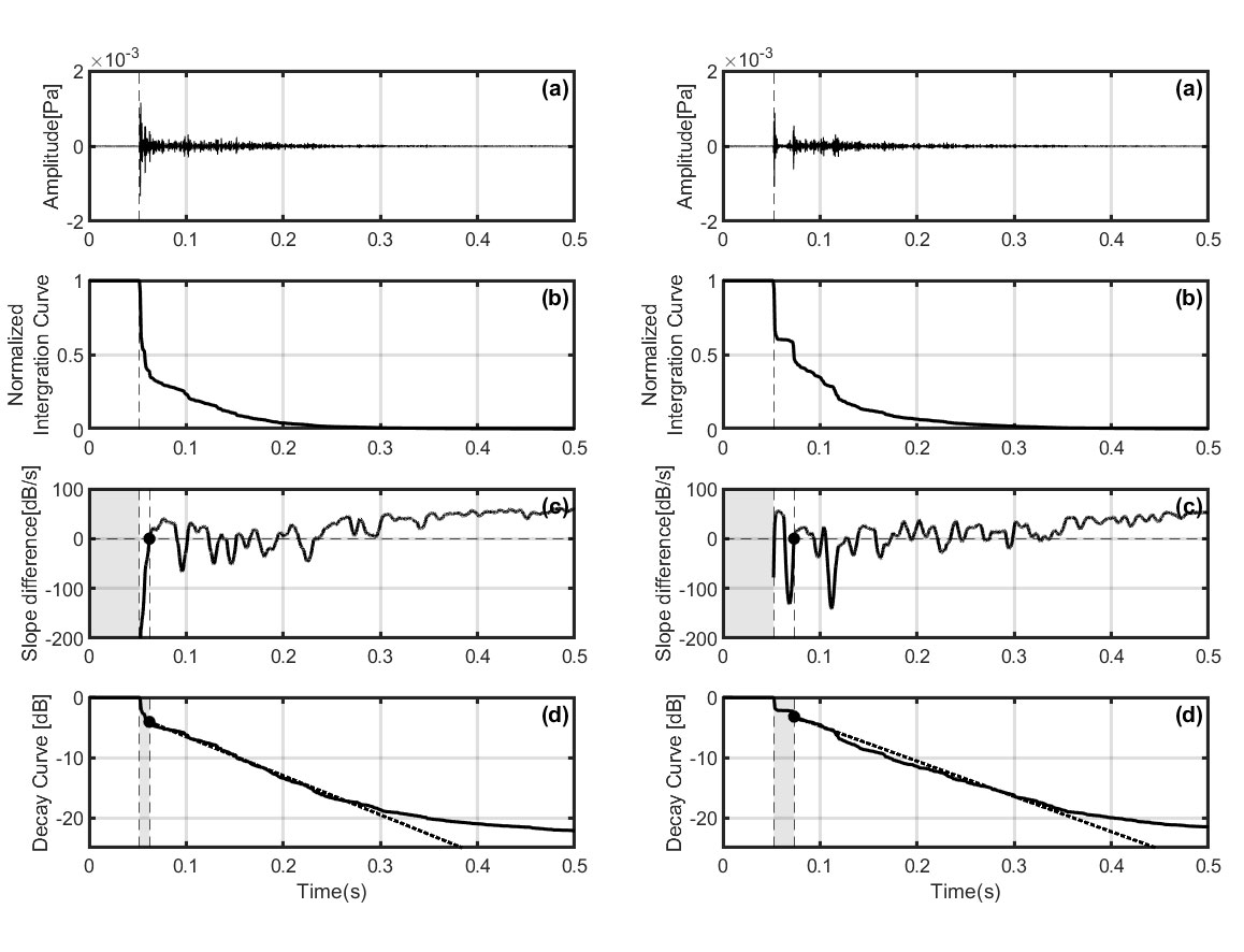
Cirillo & Martellotta6 used the difference between the slope of 100ms time domain best-fit linear regression and mean slope to find the onset time 𝑡𝑅 as entering reverberation time which room is dependent on churches. Fig. 3 shows the energy decay curve that emerges into the cliff-type and plateau-type decay in the shoe-box shape Jockey Club Auditorium. It is simple and easy to find 𝑡𝑒 when the impulse response is simply decaying. While there is a time gap between the direct sound and the early reflection, the attenuation curve will enter a plateau period which causes trouble in finding 𝑡𝑒.

 


 

Figure 3: (Left) Estimate 𝑡𝑒 in cliff-type or sagging decay curve. (Right) Estimate 𝑡𝑒 in plateau-type decay curve. (a) Room impulse response was measured in the auditorium from 0 to 0.5s. (b) Corresponding Schroeder energy decay curve (EDC). (c) Slope difference between the running slope calculated with T20 slope, and time decay 𝑡𝑒 is determined with a slope difference is 0. (d) Located 𝑡𝑒 with the line-fit of the EDT slope (dash line) which decomposes the early decay curve into early reflection time and late decay time.

 

3 EXPERIMENTS AND RESULTS

 

3.1 Measurement Venues

 

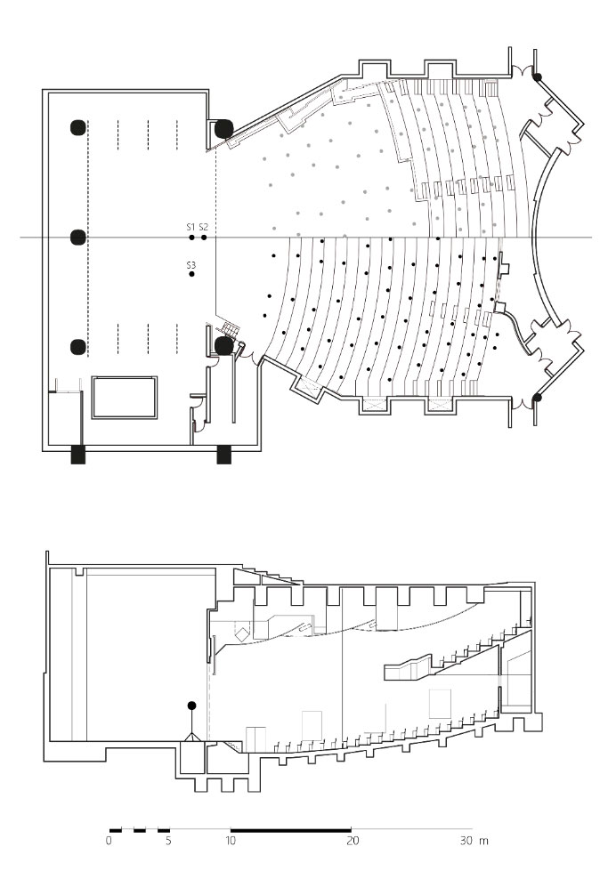
The experiment's measurement is carried out when the auditorium is unoccupied. The performance hall is a classical horseshoe-shaped plane covered by red carpets, including an auditorium that could accommodate approximately 1,000 people—the upholstered seats with fabric packet niches on both sides. The stage has various modes that can be used for lectures, plays, and movies. The specific design parameters are shown in Table 1. The plane and long section of the theater are shown in Fig. 4. As recommended by BN EN ISO 3382-1, three-position omnidirectional sound source S1, S2, and S3 is selected on the stage each time. Sources S1 and S2 are in the centerline of the stage, two and one meters away from the stage boundary corresponding. S3 is on the right side of the stage facing the audience, three meters to the right of S1.

 

 

Figure 4: Plan and Longitudinal Section of Jockey Club Auditorium. (Upper) Placement of source on the stage and Measurement receivers on the main floor. (Lower) Longitudinal section of the auditorium.


 

Figure 5: (Left) The sound path of source 1 (S1) is posited in the stage center. (Right) Sound path of source 3 (S3) is posited at the side of the stage.

 

One hundred and ten selected receiving points at the stall are at a similar distance from each other to represent the performance of the whole auditorium. The row is set by a two-rows interval arrangement. The balcony seats are not included where far from the source with more reflections in the later reverberation, which is difficult to separate from the direct sound. The Cartesian coordinates defined by the corresponding seat position convert to spherical coordinates azimuth 𝜑, elevation 𝜃, and source-receiver distance 𝑟. The source path difference between S1 and S3 is shown in Fig. 5.

 

Table 1: Spacious and setting details of Jockey Club Auditorium.

 

 

3.2 Equipment Setup and Result Analysis

 

The measurement system diagram in Fig. 6 shows the equipment setup. The sound source is a Brüel & Kjær Type 4296 dodecahedron loudspeaker. With a height of 1.5 m from the stage floor. The receiver microphone is placed 1.2 m above the stall floor, which corresponds to the ear height of an average seated person. Brüel & Kjær Type 4189 1/2-inch Free-field microphone connected with Brüel & Kjær Type 2690 NEXUS conditional amplifier is adopted as the receiver. A 5.46s maximum-length sequence (MLS) signal generated by DIRAC software synchronously is used to deconvolute recording monoaural microphone signals to calculate the impulse responses.


 

Figure 6: Measurement system: Excitation signal from DIRAC and record with sound level meter

 

From the scattering in Fig. 7, we found that the distribution of the data was related to the layout of the auditorium. The closer the point is to the sidewall, the higher the 𝑡𝑒 value. For the measurement points far away from the sidewall, 𝑡𝑒 value is similar under the rule of sound attenuation is inversely proportional to the square of the distance. All the azimuth angles, elevation angle, source-receiver distance, and square of the distance of each measuring point are brought into the linear regression analysis to determine the corresponding correlation coefficient of 𝑡𝑒 of 1000Hz.

 

The Statistical significance analysis of S1, S2, and S3 is shown in Table 2. When the confidence interval is 95%, 𝑡𝑒 is related to the azimuth angle at S1. The square of source-receiver distance also has an apparent relation. In the case of S2, 𝑡𝑒 is also related to the azimuth angle, and S3 shows when the source is asymmetrically placed on the stage, the elevation angle and Source-Receiver distance are associated with the 𝑡𝑒.


 

Figure 7: Estimated 𝑡𝑒 of 1000Hz with spatial distribution in the Cartesian coordinate system. (Left) The relationship between S1 relative position and 𝑡𝑒 (Middle) The relationship between S2 relative position and 𝑡𝑒 (Right) The relationship between Source 3 relative position and 𝑡𝑒.

 

Table 2: Statistical analysis at 95% confidence level for normal distribution of S1, S2, S3

 

 

 

4 REFERENCES

 

  1. M.R. Schroeder., ‘New Method of Measuring Reverberation Time’, J.Acoust.Soc.Am. 37(3) 409-412. (1965).
  2. W.T. Chu., ‘Impulse-response and reverberation-decay measurements made by using a periodic pseudorandom sequence’, Appl. Acoust. 29, 193-205. (1990).
  3. M.R. Schroeder., ‘Complementarity of Sound Buildup and Decay’, J.Acoust.Soc.Am. 40(3) 549-551. (1966).
  4. V.L. Jordan., ‘Einige Messungen der "Einsatzsteilheit" in Räumen und in raumakustischen Modellen’, Acta Acust. Acust. 16(3) 187-189. (1965).
  5. N. Xiang., ‘Evaluation of reverberation times using a nonlinear regression approach’, J.Acoust.Soc.Am. 98(4) 2112-2121. (1995).
  6. E. Cirillo, F. Martellotta., ‘Sound propagation and energy relations in churches. J.Acoust.Soc.Am. 118(1) 232-248. (2005).
  7. U. Berardi, E. Cirillo and F. Martellotta., ‘A comparative analysis of acoustic energy models for churches’, J.Acoust.Soc.Am. 126(4) 1838-1849. (2009).
  8. M. Barron., ‘Interpretation of Early Decay Times in Concert Auditoria’, Acta Acust. Acust. 81, 320-331. (1996).
  9. W. Reichardt, O. Alim and W. Schmidt., ‘Definition and Basis of an Objective Measurement for Determining the Boundary between Useful and Useless Clarity during Musical Performance’, Acustica, 32, 126-137. (1975).
  10. M. Vorländer., ‘Computer simulations in room acoustics: Concepts and uncertainties’, J.Acoust.Soc.Am. 133(3) 1203-1213. (2013).